Projets / Maison V - Vinezac
Maison V
Vinezac (Ardèche)
vue Sud Ouest depuis le jardin
Extension et rénovation d'une maison individuelle
surface : 190m²
budget : 175 000 €
année : 2008-2013
mission : base+exe
programme : maison avec 4 chambres, bureau, balcon, terrasse, atelier, remise
conditions particulières : chantier en auto-construction partielle
escalier et cheminée : sculptures minérales
balcon avec vue, protégé du soleil
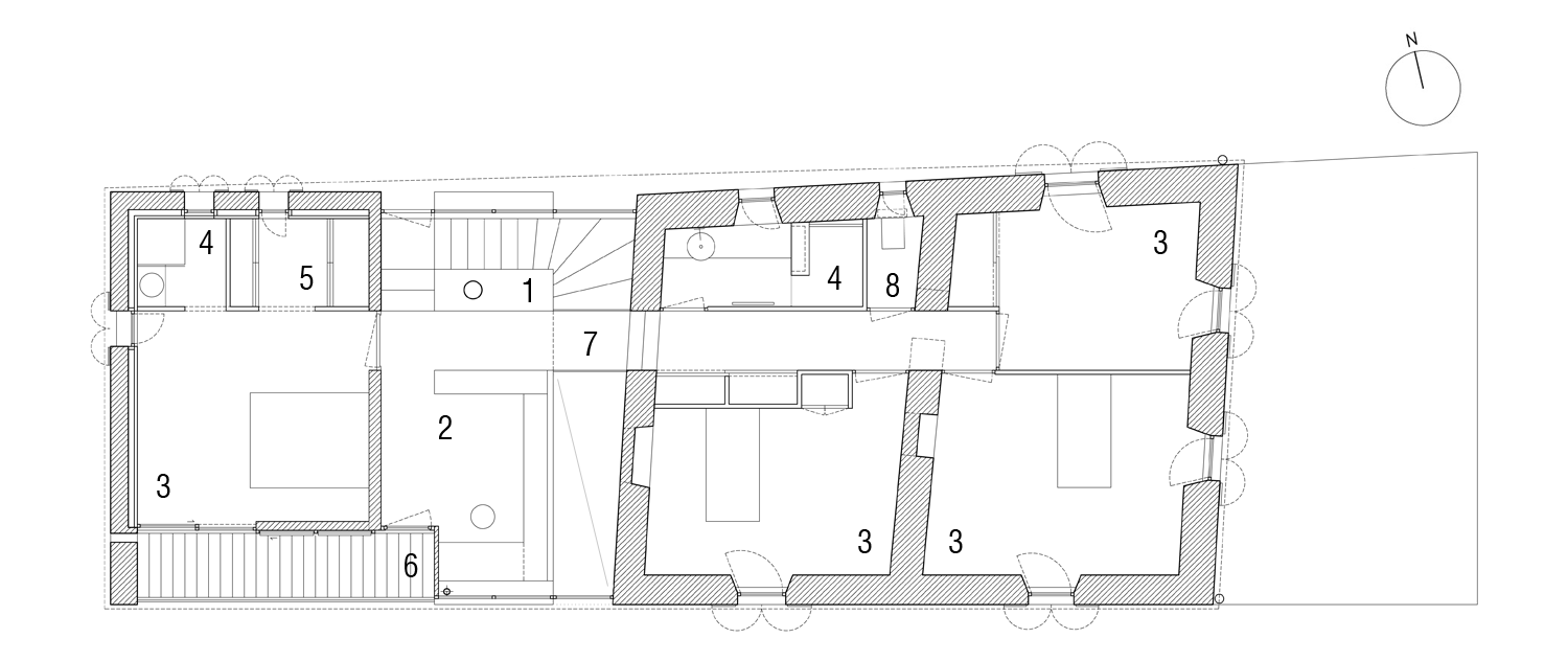
Plan du rez-de-chaussée
1. entrée
2. séjour
3. cuisine
4. cellier
5. salon
6. buanderie
7. atelier
8. remise
9. puit
espace fluide du séjour vers la terrasse
séjour lumineux et contemporain

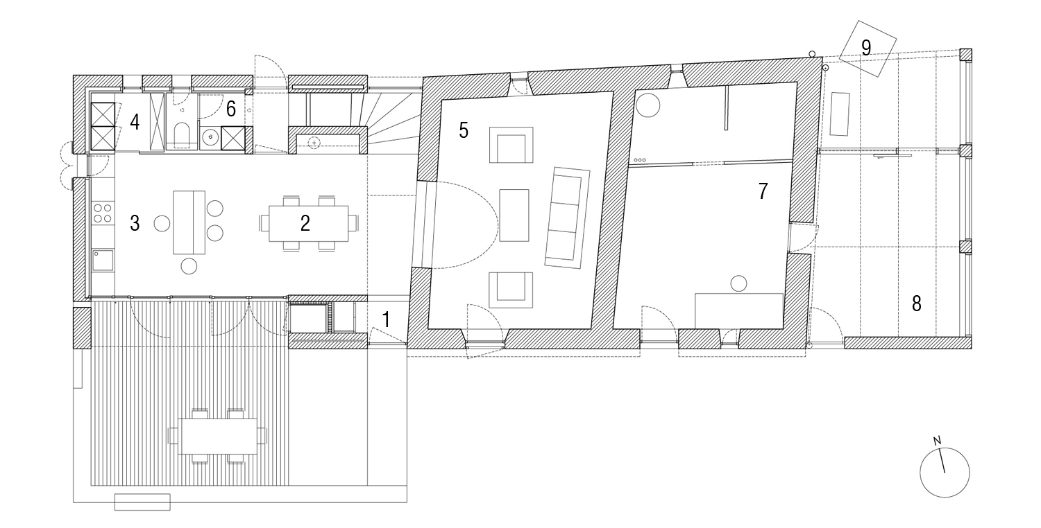
Plan d'étage
1. bloc cheminée
2. bureau
3. chambre
4. salle d'eau
5. dressing
6. balcon
7. passerelle
8. wc
garde-corps béton et passerelle acier brut
cuisine mobilier et paroi en frène massif
salon dans l'ancienne cave voutée
Note de conception
Cette ancienne maison en bordure de route communale à proximité du village de Vinezac avait subit de nombreux ajouts disgracieux au cours du temps. Il s'agissait donc de retrouver le volume initial en maçonnerie de pierres locale et d'implanter l'extension en continuité du corps principal pour allonger la façade Sud et redonner de l'espace au jardin.
A ces premières intentions s'ajoutent deux autres idées :
- le ré-emploi des pierres d'un mazet (petite cabane en pierre) présent en fond de parcelle mais trop éloigné de la maison pour être intégré.
- la distinction de l'intervention contemporaine vis-à-vis de l'existant par une jonction en "joint creux" par les éléments menuisés pour une possible réversibilité de l'intervention.
Si le parti-pris était la continuité sur le traitement extérieur de l'édifice, et notamment sa matérialité et volumétrie, l'espace intérieur aux parois en béton blanc teinté au sable jaune de la pinède voisine contraste par sa matérialité contemporaine comme par son dessin d'une grande rigueur géométrique.
Une série de murs parallèles d'épaisseur variable, articulent l'entrée coté Sud et l'escalier coté Nord qui s'enroule autour du "bloc" cheminée.
Le séjour est pensé dans une grande fluidité d'usage avec un accès à la terrasse de plain pied par la grande baie vitrée de 5m de largeur, abritée par le balcon de l'étage qui lui sert de protection solaire.
La voûte de l'ancienne cave transformée en "salon fraîcheur", en léger contrebas, a été percé par une voûte transversale offrant ainsi une continuité spatiale subtile avec le séjour.
Une bande servante au Nord libère le séjour des éléments disgracieux. Ainsi le cellier, les toilettes et l'accès Nord sont intégrés derrière une paroi réalisée en panneaux de trois-plis Frêne en harmonie avec la teinte dorée du béton.
Un espace double-hauteur dégage le mur pierre de la partie ancienne et seule une fine passerelle métallique relie les deux parties de la maison, comme un saut dans le temps. Ce volume double-hauteur, véritable cœur de la maison s'articule avec l'espace ouvert du bureau/bibliothèque de l'étage au beau volume sous rampant et se prolonge au Sud par le balcon abrité offrant la vue sur le village de caractère de Vinezac.
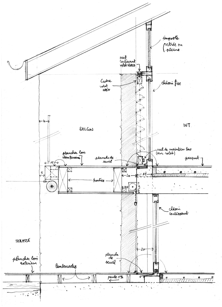
Carnet de croquis
détail du balcon : menuiseries, volets coulissants persiennés et terrasse bois
détail de l"ensemble menuisé d'entrée
détail de la paroi 3plis Frêne du séjour
détail de la passerelle acier de 8cm d'épaisseur
Collaborateurs
entreprises :
Maçonnerie GASCON - charpente SIMONIN - menuiserie extérieure PATURAUD - serrurerie CURINIER - menuiserie intérieure GUINARD
