Projets / Maison JM - Saint-Nizier-du-Moucherotte
Maison JM
Saint-Nizier-du-Moucherotte (Isère)
vue Sud Ouest depuis le jardin
Construction d'une maison individuelle
surface : 150m²
budget : 240 000 €
année : 2016-2018
mission : base+exe
programme : maison avec 4 chambres, salle d'eau, salle de bain, bureau, garage, remise
conditions particulières : projet en milieu de montagne, altitude +1150m
perspective à l'étage - photo David Laurent
salon double-hauteur
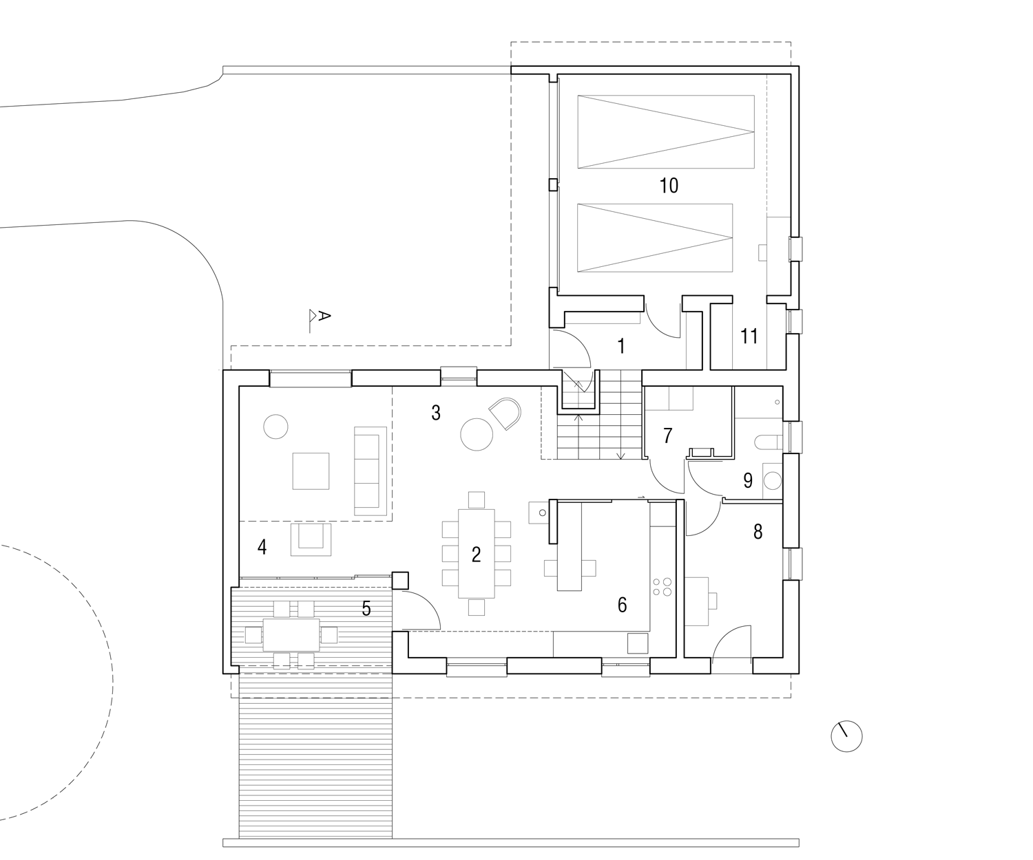
Plan du rez-de-jardin
1. entrée
2. séjour
3. bibliothèque
4. salon
5. terrasse
6. cuisine
7. cellier
8. chambre
9. salle d'eau
10. garage
11. remise
espace fluide du séjour - photo David Laurent
tableau en mouvement au fil des saisons - photo David Laurent
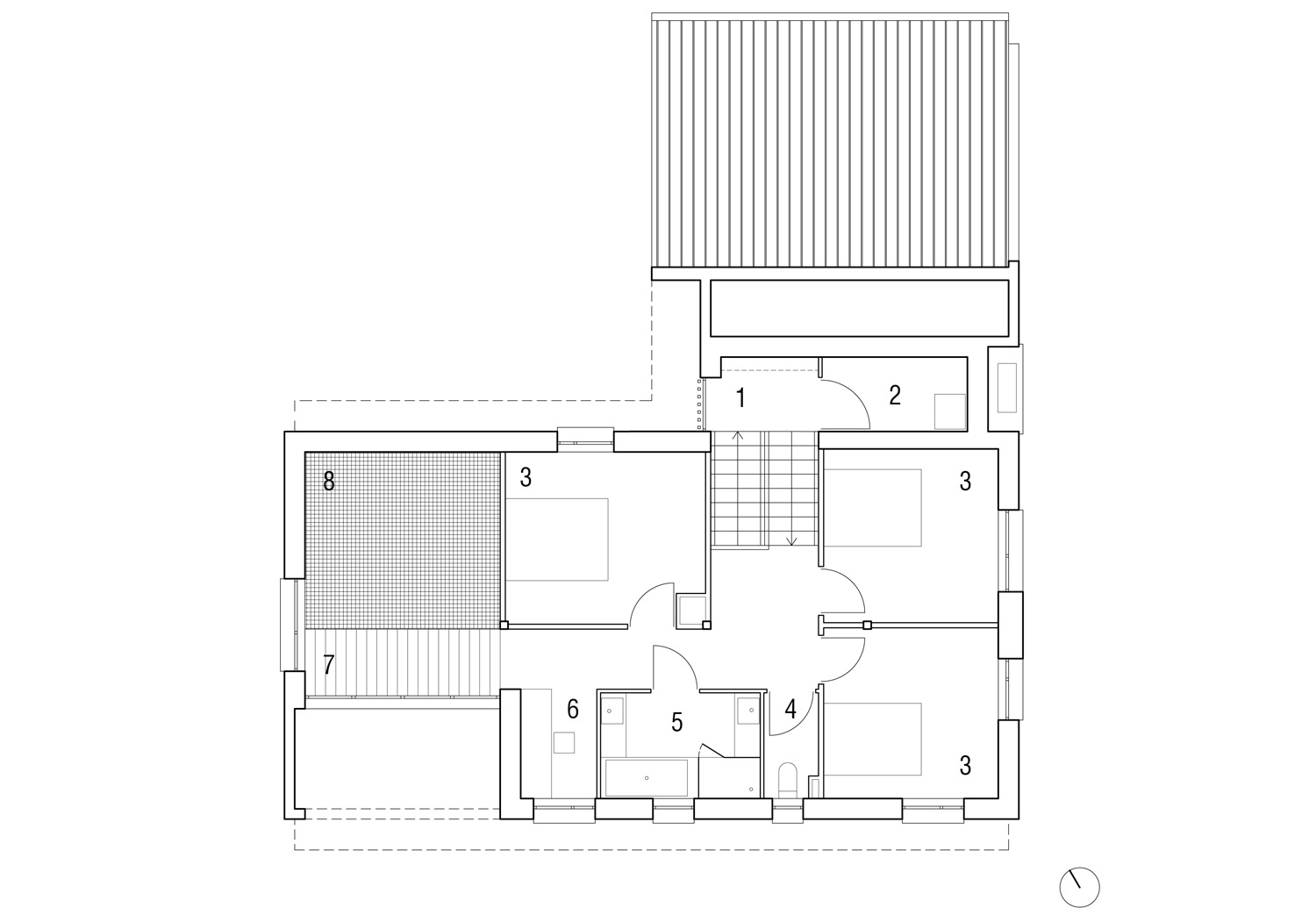
Plan d'étage
1. escalier
2. chaufferie
3. chambre
4. wc
5. salle de bain
6. bureau
7. passerelle
8. filet
la maison depuis les champs à l'Est
coté Nord après la neige - photo David Laurent

Coupe transversale
fenêtres sur cour - photo David Laurent
silhouette depuis le chemin communal
salon suspendu
jeux d'ombres
salon double hauteur
Note de conception
Ce projet s'implante sur un petit terrain en pente versant Nord, en contrebas du village de Saint Nizier du Moucherotte. Le terrain d'assise du projet présentait des difficultés d'exposition dans une visée bioclimatique mais la vue promise sur le plateau de Saint-Nizier justifiait de le considérer.
Le projet arrive à résoudre toutes les contraintes du site par une adaptation fine au terrain en créant un lieu de vie agréable, accueillant le soleil tout le long de la journée et au fil des saisons. Les volumes généreux et la qualité spatiale intérieure baignée de lumière naturelle en présence du bois compensent l'éxiguité du terrain.
L'implantation à demi-niveaux a été retenue pour une intégration fine dans la pente, un premier niveau d'entrée avec garage à l'Ouest, et un demi-niveau au dessus, le niveau du séjour à hauteur du jardin coté Sud.
L'élévation de l'étage permis de trouver les vues à l'Est sur "les Trois Pucelles" aiguilles rocheuses surplombant l'ancien tremplin olympique de 1968, et à l'Ouest les pairies d'alpage et crêtes de la Molière très connues des randonneurs à ski et vététistes.
Le plan de la maison est composé d'un carré divisé en 4 dont un quart est évidé pour constituer la cour d'entrée. Les deux quarts du Sud contituent le corps principal et le quart restant les garages en continuité de la toiture principale, à l'image des appentis des fermes traditionnelles de la région.
Cette maison a été pensée comme ré-interprétation de l'architecture traditionnelle du Vercors-Nord, dans sa volumétrie compacte, sa structure en maçonnerie et ses pignons réhaussés - autrefois nécessaire pour protéger et entretenir les toitures de chaume.
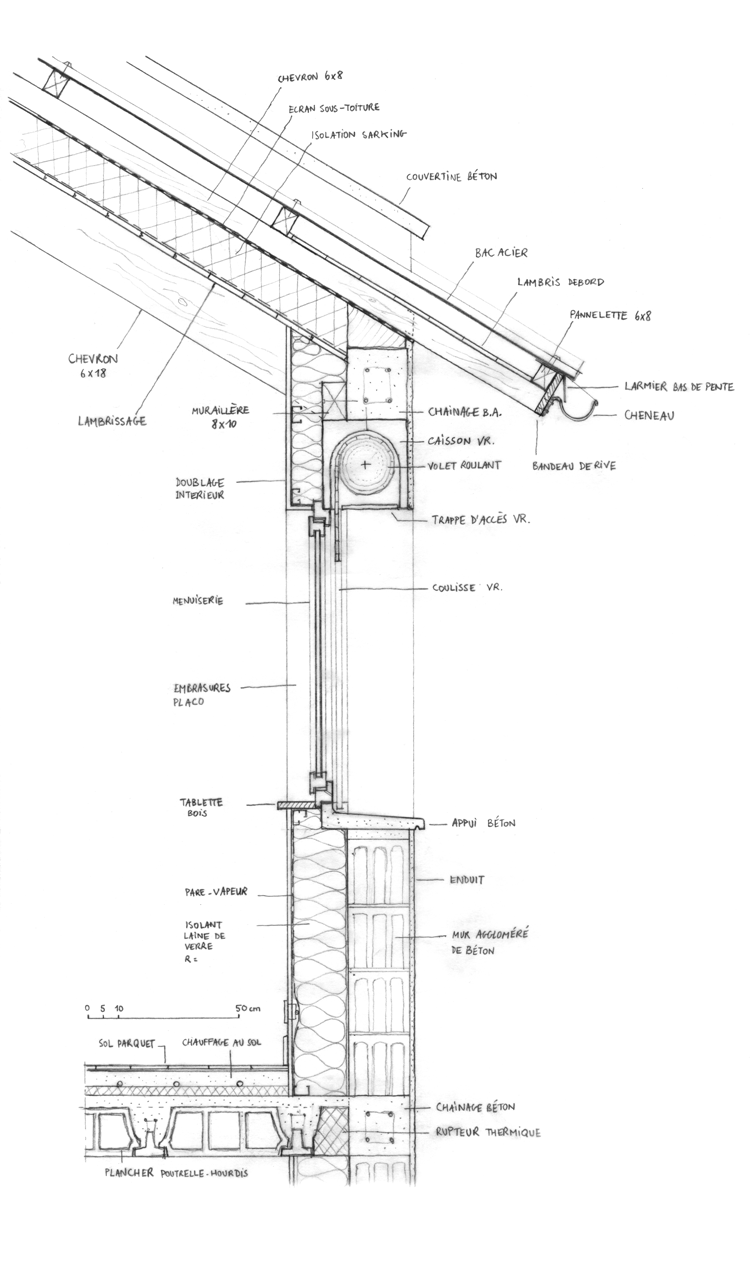
La charpente en bois local (bois des alpes) est très simple : c'est une série de panne-chevrons espacés de 60cm et assemblés à une poutre faitière par queue d'aronde. La volonté de laisser la charpente apparente à l'intérieure a été possible par le choix de l'isolation Sarking (isolation extérieure en toiture) garantissant une belle performance thermique en zone montagneuse grâce à l'élimination des ponts thermiques.
Les baies en menuiseries bois massif de Mélèze complètent l'ambiance intérieure d'une grande sobriété.
Le séjour double hauteur s'agrémente d'un filet d'habitation permettant de profiter de manière ludique de ce volume baigné de lumière tout au long de la journée.
Carnet de croquis
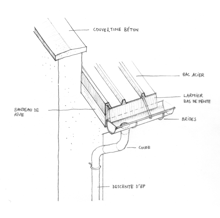
détail de la rive de toiture Sarking avec rive affinée
détail de l'entrée coté cours - claustra, rive de toit affinée
détail du pigon réhaussé - réinterprétation des pignons lauzés traditionnels du Vercors
détail de l'aménagement de la salle de bain
Collaborateurs
bureaux d'études :
Structure : BSI - géotechnique : EG SOL - thermique : BASTIDE BONDOUX - étanchéité à l'air : UBAT CONTRÔLE
entreprises :
Maçonnerie : VERCORS CONSTRUCTION - charpente : LC BATISSE - menuiserie extérieure : AMM - étancheité à l'air : EVEREST ISOLATION - carrelage faïences : METRO'NHOME - chauffage : SWEETAIR - électricité : EG2J
