Projets / Maison V - La Rochette
Maison V
La Rochette (Ardèche)
vue depuis le chemin communal
Rénovation d'une maison individuelle
surface : 140m²
budget : 120 000 € (travaux)
année : 2021 - en cours
mission : base+exe
programme : maison avec 3 chambres, bureau, atelier, remise & cave
conditions particulières : chantier en milieu de montagne
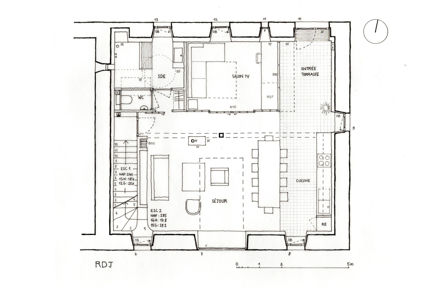
salon
séjour
vue sur le bow-window depuis le salon

séjour - parquet chataignier
dégagement vers la terrasse - sol tomette
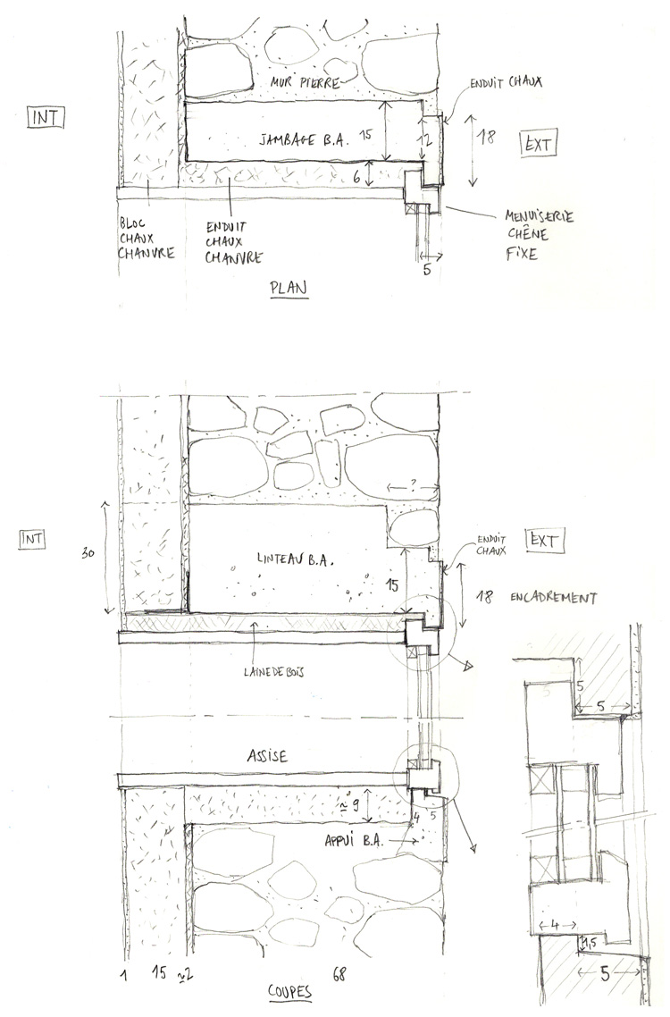
coupe transversale
façade Est projet
vue depuis le bow-window
salon cosy - soubassement bois & enduit terre paille
Note de conception
Cette maison de montagne, installée dans la pente au pied du Mont Mézenc est batie en maçonnerie de pierres locales (basalte, granit, shiste) témoignant de la richesse géologique de la région. Le projet de rénovation intervient très peu sur l'enveloppe extérieure car il s'agissait surtour de révéler et développer les qualités en présence : matérialité, potentialité spatiale, rapport au site et qualité thermique.
Le manque de lumière naturelle caractéristique des anciennes batisses rurales imposait l'agrandissement de la baie centrale en façade Sud, idée confortée par la réflexion bioclimatique et la mise en valeur de la vue sur les sucs volcaniques de Borée.
La double-hauteur du séjour surmontée d'un puit de lumière zénital complète ce dispositif central qui baignera de lumière naturelle l'ensemble des espaces de vie, en profondeur et sur les deux niveaux. C'est en saison hivernale quand l'angle d'incidence solaire est le plus faible et lorsque le rayonnement solaire est particulièrement précieux que ce dispositif sera le plus efficient.
Un travail de remaniement de la distribution intérieure a été mené pour fluidifier et optimiser l'espace intérieur et a impliqué le déplacement d'un escalier.
L'accent est mis sur la conservation et mise en valeur des éléments existants, le plus possible dans leur état d'origine, afin de composer une ambiance intérieure à la fois rustique et contemporaine. Ce projet interroge l'imperfection géométrique du patrimoine bati existant vis-à-vis de la pensée et du dessin d'architecture contemporaine. Nous proposons ici d'entrer en résonnance avec cette imperfection, en la considérant comme une vraie richesse à l'image de la nature incertaine du trait à main levée.
Ainsi, les matériaux naturels bio et géosourcés et les pratiques artisanales sont mises à l'honneur pour en révéler les qualités plastiques, de durabilité et de confort hygrothermique : dallage à la chaux, doublage en chaux-chanvre, enduit terre-paille, couverture en lauze phonolythes, menuiseries chêne, parquet chataîgner massif, tomettes de terre cuite et réemploi d'éléments de déconstruction.
Bien qu'implantée à plus de 1000m d'altitude, le confort thermique estival est soigné notamment par une isolation en laine de bois en toiture offrant ainsi un très bon niveau de résistance et de déphasage thermique.
Le confort hivernal est pensé dans une grande simplicité : un poêle à bois central chauffera les espaces de séjour par rayonnement et par convection naturelle les chambres à l'étage.
façade Sud existante
façade Sud projet
plan de masse
Carnet de croquis
esquisse du séjour
la toiture de lauzes et ses émergences
élévation du mur tuile de la buanderie
élévation du mur tuile de la buanderie
détail de la baie Sud du séjour posée en applique extérieur
détail du complexe de toiture en couverture de lauze
Image d'un chantier
verrière de l'atelier couture en menuiseries de ré-emploi
mur Nord de la buanderie en tuiles de récupération maçonnées à la chaux
enduit terre-paille, plinthe en faïences 10x10 et dalle à la chaux
badigeon de chaux aérienne à destination des poutraisons du rez
Collaborateurs
entreprises :
Maçonnerie : ROCHE BATIMENT / Charpentier lauzeur : GUIRBERT Mathieu / Terrassements VRD : RIBES TP / Menuiseries bois extérieure : MENUISERIE DE LA BOURGES
